Premium Redefining your interiors with Aesthetic style
The elite range is an amalgam of aesthetic look and high performance. People who are looking for an appealing look with smooth functionality can pick our premium range of windows and doors in a go. The range includes superior insulations, high-aesthetic value, elaborate designs, and a great price ratio. Additionally, it is suitable for traditional and contemporary designs.
At Altogether Smart Solutions, we believe that interiors should be more than just functional—they should be a reflection of elegance, innovation, and refined taste. Our premium range of aluminium and uPVC fenestration systems is thoughtfully crafted to transform everyday spaces into stunning environments. Whether it’s sleek sliding doors, modern windows, or sophisticated façade systems, each product is engineered with precision and aesthetic excellence in mind. With the fusion of German technology and eco-friendly design, we don’t just enhance interiors—we redefine them with unmatched style, performance, and durability.
Our focus on clean lines, premium finishes, and sustainable materials ensures that your interiors are not only visually appealing but also future-ready and environmentally responsible.
With Altogether Smart Solutions, you don’t just invest in a product—you invest in a lifestyle upgrade. Redefine your interiors with solutions that are as smart and durable as they are beautiful.
Lift & Slide Windows
Altogether Smart Solutions offers a range of lift and slide doors to complement the overall home décor and interior. Suitable for people who prefer clear view with the bigger size of the doors at home. Lift and slide is a very popular variety available in the market, today. Manufactured with the highest engineering techniques, lift and slide doors offer smooth functioning than any other standard sliding system. These doors use thick profile section that enables us to use fewer panels in the sliding system. The use of fewer panels makes it roll smoothly and easy to use at home and offices. Being big, these windows give you a panoramic view and make your room glowing and spacious. Therefore, many people use lift and slide doors as an extension of their living rooms.
Altogether Smart Solutions, we bring you a premium range of lift and slide door systems designed to seamlessly blend with modern interiors while enhancing your living experience. Perfect for homeowners and designers who value wide, unobstructed views and a spacious ambiance, these doors redefine how natural light and openness interact with interior spaces.
These doors are especially popular as stylish extensions of living rooms, patios, or balconies—merging indoor comfort with outdoor beauty.
Discover the perfect lift and slide solution for your space with Altogether Smart Solutions—where innovation meets elegance.
Installations
- Window/Door joining walls should be plastered from inside as well as outside. The cavity in which the new window shall be installed shall be free from any obstruction. The sill should be well plastered.
- Each window should be adequately and properly shimmed to the plumb level.
- The cavity shall be measured at three points both in width and height as under, the variation between maximum and minimum size in case of width and also in height should not exceed 12 mm.
- The width of the sill be more than the window frame width
- Clear guidelines to be given whether window to be internally flushed or externally flushed or what space to be left whether outside or inside if the sill level is more.
Slide & Fold Windows
Altogether Smart Solutions, we offer a sophisticated collection of slide and fold windows and doors designed to elevate both form and functionality in residential and commercial spaces. Whether you’re replacing an outdated entryway or seeking a fresh, open design, our bi-fold systems bring unmatched flexibility, style, and spatial transformation to any setting.
Engineered for smooth performance and crafted using high-quality materials such as aluminium, glass, and custom wood finishes, these systems allow multiple panels to slide and fold effortlessly to one side—offering a wide, unobstructed opening that connects indoor and outdoor spaces seamlessly.
Perfect for patios, balconies, meeting rooms, and large openings, slide and fold doors create a grand, inviting atmosphere while enhancing ventilation, natural lighting, and space utilization. The clever design not only offers a dramatic visual impact but also makes rooms appear more open, airy, and expansive.
With a contemporary appeal and robust functionality, slide and fold systems are becoming a popular choice among architects and homeowners alike. Whether you want a seamless transition between spaces or an aesthetic upgrade, these doors and windows are a versatile, elegant solution.
Experience flexibility and finesse like never before—with Altogether Smart Solutions’ premium slide and fold systems.
Installations
- Window/Door joining walls should be plastered from inside as well as outside. The cavity in which the new window shall be installed shall be free from any obstruction. The sill should be well plastered.
- Each window should be adequately and properly shimmed to the plumb level.
- The cavity shall be measured at three points both in width and height as under, the variation between maximum and minimum size in case of width and also in height should not exceed 12 mm.
- The width of the sill be more than the window frame width
- Clear guidelines to be given whether window to be internally flushed or externally flushed or what space to be left whether outside or inside if the sill level is more.
Technical Specification
Premium Redefining your interiors with Aesthetic style
The elite range is an amalgam of aesthetic look and high performance. People who are looking for an appealing look with smooth functionality can pick our premium range of windows and doors in a go. The range includes superior insulations, high-aesthetic value, elaborate designs, and a great price ratio. Additionally, it is suitable for traditional and contemporary designs.
At Altogether Smart Solutions, we believe that interiors should be more than just functional—they should be a reflection of elegance, innovation, and refined taste. Our premium range of aluminium and uPVC fenestration systems is thoughtfully crafted to transform everyday spaces into stunning environments. Whether it’s sleek sliding doors, modern windows, or sophisticated façade systems, each product is engineered with precision and aesthetic excellence in mind. With the fusion of German technology and eco-friendly design, we don’t just enhance interiors—we redefine them with unmatched style, performance, and durability.
Our focus on clean lines, premium finishes, and sustainable materials ensures that your interiors are not only visually appealing but also future-ready and environmentally responsible.
With Altogether Smart Solutions, you don’t just invest in a product—you invest in a lifestyle upgrade. Redefine your interiors with solutions that are as smart and durable as they are beautiful.
Lift & Slide Windows
Altogether Smart Solutions offers a range of lift and slide doors to complement the overall home décor and interior. Suitable for people who prefer clear view with the bigger size of the doors at home. Lift and slide is a very popular variety available in the market, today. Manufactured with the highest engineering techniques, lift and slide doors offer smooth functioning than any other standard sliding system. These doors use thick profile section that enables us to use fewer panels in the sliding system. The use of fewer panels makes it roll smoothly and easy to use at home and offices. Being big, these windows give you a panoramic view and make your room glowing and spacious. Therefore, many people use lift and slide doors as an extension of their living rooms.
Altogether Smart Solutions, we bring you a premium range of lift and slide door systems designed to seamlessly blend with modern interiors while enhancing your living experience. Perfect for homeowners and designers who value wide, unobstructed views and a spacious ambiance, these doors redefine how natural light and openness interact with interior spaces.
These doors are especially popular as stylish extensions of living rooms, patios, or balconies—merging indoor comfort with outdoor beauty.
Discover the perfect lift and slide solution for your space with Altogether Smart Solutions—where innovation meets elegance.
Installations
- Window/Door joining walls should be plastered from inside as well as outside. The cavity in which the new window shall be installed shall be free from any obstruction. The sill should be well plastered.
- Each window should be adequately and properly shimmed to the plumb level.
- The cavity shall be measured at three points both in width and height as under, the variation between maximum and minimum size in case of width and also in height should not exceed 12 mm.
- The width of the sill be more than the window frame width
- Clear guidelines to be given whether window to be internally flushed or externally flushed or what space to be left whether outside or inside if the sill level is more.
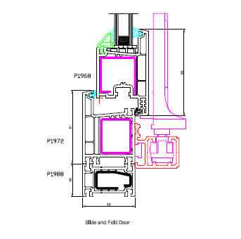
Slide & Fold Windows
Altogether Smart Solutions, we offer a sophisticated collection of slide and fold windows and doors designed to elevate both form and functionality in residential and commercial spaces. Whether you’re replacing an outdated entryway or seeking a fresh, open design, our bi-fold systems bring unmatched flexibility, style, and spatial transformation to any setting.
Engineered for smooth performance and crafted using high-quality materials such as aluminium, glass, and custom wood finishes, these systems allow multiple panels to slide and fold effortlessly to one side—offering a wide, unobstructed opening that connects indoor and outdoor spaces seamlessly.
Perfect for patios, balconies, meeting rooms, and large openings, slide and fold doors create a grand, inviting atmosphere while enhancing ventilation, natural lighting, and space utilization. The clever design not only offers a dramatic visual impact but also makes rooms appear more open, airy, and expansive.
With a contemporary appeal and robust functionality, slide and fold systems are becoming a popular choice among architects and homeowners alike. Whether you want a seamless transition between spaces or an aesthetic upgrade, these doors and windows are a versatile, elegant solution.
Experience flexibility and finesse like never before—with Altogether Smart Solutions’ premium slide and fold systems.
Installations
- Window/Door joining walls should be plastered from inside as well as outside. The cavity in which the new window shall be installed shall be free from any obstruction. The sill should be well plastered.
- Each window should be adequately and properly shimmed to the plumb level.
- The cavity shall be measured at three points both in width and height as under, the variation between maximum and minimum size in case of width and also in height should not exceed 12 mm.
- The width of the sill be more than the window frame width
- Clear guidelines to be given whether window to be internally flushed or externally flushed or what space to be left whether outside or inside if the sill level is more.
